Schulraumerweiterung Schulhaus Steinmatt | Oberbuchsiten

2019 - 2021 | CHF 5.3 Mio. | Einwohnergemeinde Oberbuchsiten

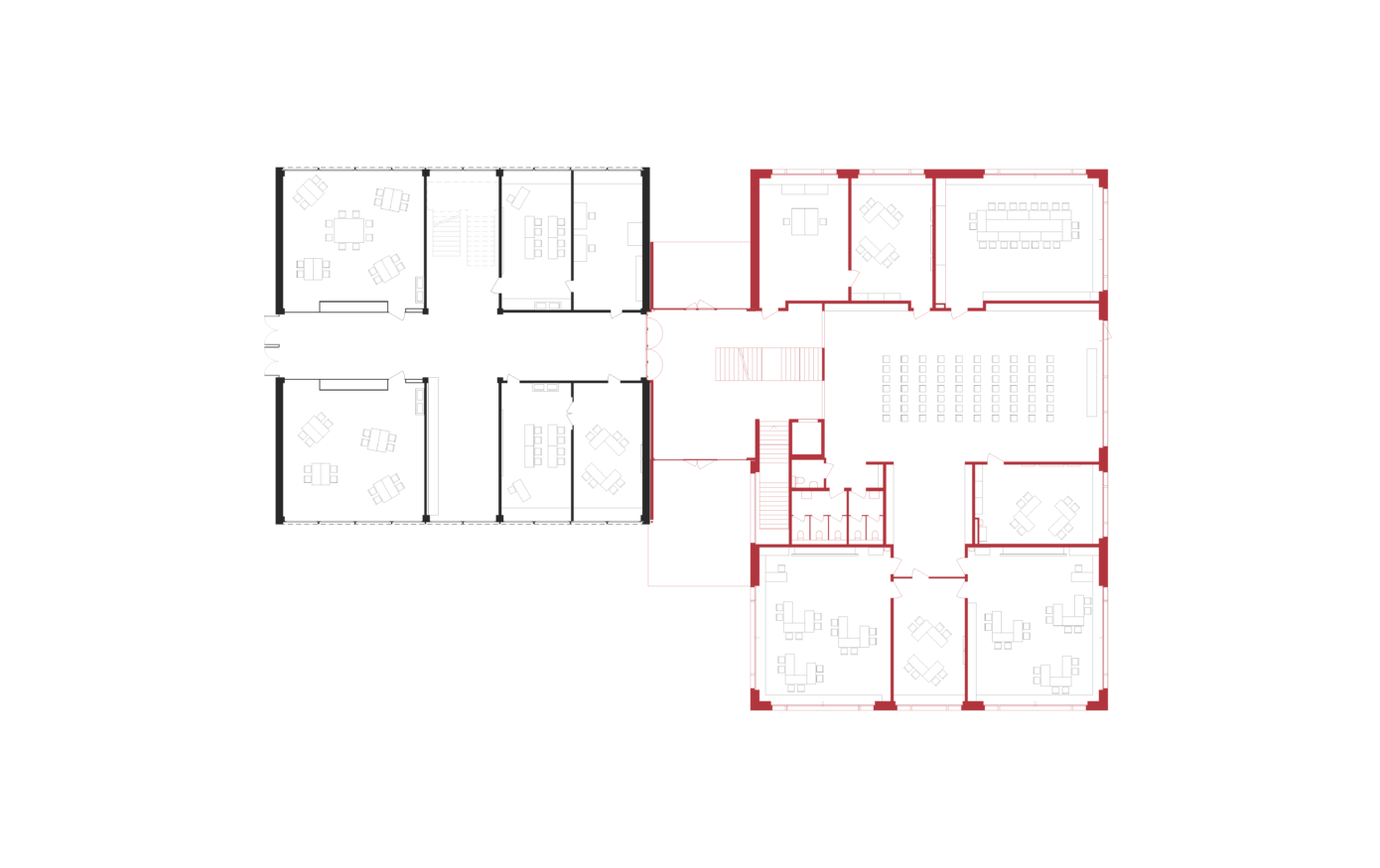
Das Schulhaus Steinmatt aus dem Jahr 1982 wurde auf der Südseite durch einen Erweiterungsbau ergänzt, der den zusätzlichen Raumbedarf der Schule aufnimmt. Im Erdgeschoss entstand ein offener, multifunktionaler Bereich, der Eingang, Begegnungszone, Garderoben und die Erschliessung der Räume vereint. Der Verbindungsbau übernimmt sowohl die vertikale als auch horizontale Erschliessung und dient zugleich als neuer Zugang vom «Dorfbachbrüggli», der als Pausenplatz ausgebildet wurde. Eine zentral angeordnete Treppe führt ins Obergeschoss, wo die Schulräume um einen flexiblen Erschliessungsraum organisiert sind. Im Untergeschoss befinden sich Werk- und Technikräume. Prägend für das Projekt ist die konsequente Durchlässigkeit von Tageslicht, welche über klare Achsen und transparente Raumfolgen bis an die Fassade geführt wird. Die Fassade mit vorgehängten Betonelementen nimmt Bezug auf den Bestand, während vertikale Holzschalungen und grosszügige Verglasungen der Erweiterung eine eigenständige, zeitgemässe Identität verleihen.

Projekt Details:

Auftragsart:

Bauherrschaft: Einwohnergemeinde Oberbuchsiten

Architektur: Batimo AG Architekten SIA

Bauleitung: Batimo AG Architekten SIA
Bauingenieur: TSW AG Trachsel, Schibli, Walder

HLKS-Ingenieur: Ingenieurbüro R. Kaufmann

Elektroingenieur: Aare Elektroplan AG